Description
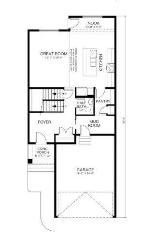
Brand New Genesis Home | The Jordan | Stunning Finishes | 2,040 SqFt | 3 Beds | 2.5 baths | Electric Fireplace | Gas Line to BBQ | Gas Line to Range | Built in Kitchen Appliances | Chimney Hood Fan | Quartz Countertops Throughout | Tray Ceiling in Upper Level Loft | Primary 5pc Ensuite with Double Vanity Sinks & Soaking Tub | Spindle Railing | 9Ft Basement Ceilings | Great Size Backyard | Front Attached Double Garage | Extended Driveway. Welcome home to your stunning brand new home built by Genesis Homes. This 2-storey family home boasts 2,040 SqFt throughout the main & upper levels plus an unfinished basement with a separate side entry. The front door opens to a grand foyer with closet storage & space for bench seating. The main level has a welcoming open floor plan with high ceilings & large windows that emphasize the natural light that fills the home. The sparkling kitchen is outfitted with quartz countertops, built-in appliances, a chimney hood fan & a centre island with barstool seating space. The walkthrough pantry connects the mud room & the kitchen making your grocery drops easy! The dining area is framed with large windows that overlook the backyard & a door that leads to the backyard where you have a BBQ Gas line. The living room is centred with an electric fireplace adding both style & comfort to the space. The main level is complete with a 2pc powder room. The interior is complemented by metal spindle railings, adding a touch of sophistication & durability to the stairways. Upstairs has plush carpet flooring throughout the 3 bedrooms & bonus room. The central bonus room has tray ceilings & is the perfect space to unwind in the evenings with the family. The primary bedroom is a luxurious retreat paired with a deep walk-in closet & private 5pc ensuite bath. The ensuite has a deep soaking tub, walk-in shower with tiles to the ceiling & a double vanity. Bedrooms 2 & 3 are both a great size & share the main 4pc bath with a tub/shower combo. The upper level laundry room is every home owner's dream as its located near all the bedrooms! Downstairs, the unfinished basement is a blank canvas to be designed as your family needs. The large backyard gives you a great outdoor entertainment space when you host in the warm summer months. Enjoy the deck year round for those BBQs you've been looking to have! The Smart Home package provided to you is an added bonus to your convenience. The front attached double garage & driveway provide you with parking for 4 vehicles at any time. Located just 20 minutes from the heart of Calgary - the Clearwater community resides in the beautiful city of Chestermere. Benefiting from it's quiet location, multiple recreation & retail amenities & it's acclaimed lake with beaches & motor vehicle access. Book your showing at this gorgeous Genesis Home today! Genesis Builders Group follows the First-Time Home Buyer GST/HST Rebate to eliminate the 5% GST on qualifying new homes (up to $1 million) for qualifying first time home buyers.
-
3BEDS
-
0.09ACRES
-
2BATHS
-
11/2 BATHS
-
2,040SQFT
-
$364$/SQFT
Description
Brand New Genesis Home | The Jordan | Stunning Finishes | 2,040 SqFt | 3 Beds | 2.5 baths | Electric Fireplace | Gas Line to BBQ | Gas Line to Range | Built in Kitchen Appliances | Chimney Hood Fan | Quartz Countertops Throughout | Tray Ceiling in Upper Level Loft | Primary 5pc Ensuite with Double Vanity Sinks & Soaking Tub | Spindle Railing | 9Ft Basement Ceilings | Great Size Backyard | Front Attached Double Garage | Extended Driveway. Welcome home to your stunning brand new home built by Genesis Homes. This 2-storey family home boasts 2,040 SqFt throughout the main & upper levels plus an unfinished basement with a separate side entry. The front door opens to a grand foyer with closet storage & space for bench seating. The main level has a welcoming open floor plan with high ceilings & large windows that emphasize the natural light that fills the home. The sparkling kitchen is outfitted with quartz countertops, built-in appliances, a chimney hood fan & a centre island with barstool seating space. The walkthrough pantry connects the mud room & the kitchen making your grocery drops easy! The dining area is framed with large windows that overlook the backyard & a door that leads to the backyard where you have a BBQ Gas line. The living room is centred with an electric fireplace adding both style & comfort to the space. The main level is complete with a 2pc powder room. The interior is complemented by metal spindle railings, adding a touch of sophistication & durability to the stairways. Upstairs has plush carpet flooring throughout the 3 bedrooms & bonus room. The central bonus room has tray ceilings & is the perfect space to unwind in the evenings with the family. The primary bedroom is a luxurious retreat paired with a deep walk-in closet & private 5pc ensuite bath. The ensuite has a deep soaking tub, walk-in shower with tiles to the ceiling & a double vanity. Bedrooms 2 & 3 are both a great size & share the main 4pc bath with a tub/shower combo. The upper level laundry room is every home owner's dream as its located near all the bedrooms! Downstairs, the unfinished basement is a blank canvas to be designed as your family needs. The large backyard gives you a great outdoor entertainment space when you host in the warm summer months. Enjoy the deck year round for those BBQs you've been looking to have! The Smart Home package provided to you is an added bonus to your convenience. The front attached double garage & driveway provide you with parking for 4 vehicles at any time. Located just 20 minutes from the heart of Calgary - the Clearwater community resides in the beautiful city of Chestermere. Benefiting from it's quiet location, multiple recreation & retail amenities & it's acclaimed lake with beaches & motor vehicle access. Book your showing at this gorgeous Genesis Home today! Genesis Builders Group follows the First-Time Home Buyer GST/HST Rebate to eliminate the 5% GST on qualifying new homes (up to $1 million) for qualifying first time home buyers.
