Description
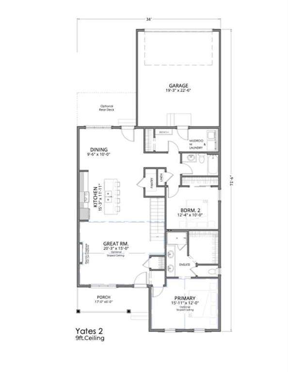
For more information, please click the "More Information" button. Quietly elegant and thoughtfully designed, the Yates 2 bungalow custom home offers a refined approach to single-level living in the heart of Diamond Ridge in Diamond Valley. Located on Lot 40 at 308 John Avenue SW, this new construction home provides 1,384 sq. ft. of thoughtfully planned space, balancing openness with intentional privacy. Wide front-facing windows flood the main living area with natural light, enhancing the home’s warm and welcoming atmosphere. The open-concept design flows seamlessly from the kitchen into the dining and living areas—ideal for both everyday living and hosting. With 9’ ceilings throughout the main floor, the space feels bright and expansive. The kitchen is anchored by a large central island with breakfast bar, stone countertops, soft-close cabinetry, and a premium LG appliance package—delivering both elevated design and everyday functionality. This well-balanced layout offers 2 bedrooms and 2 full bathrooms, including a spacious primary retreat complete with a walk-in closet and four-piece ensuite. Buyers have the opportunity to select a configuration that further enhances privacy by positioning the primary bedroom in a more secluded rear setting—creating a true separation between the sleeping quarters and main living areas. This thoughtful design option adds flexibility and a more estate-inspired feel to bungalow living. A functional mudroom with main-floor laundry adds convenience and practical organization, supporting easy, low-maintenance living. Exterior finishes showcase a cohesive modern aesthetic, including black asphalt shingles, white horizontal fiber cement siding, black window trim, black metal soffits, fascia and eavestroughs, and black vinyl-clad windows—offering strong curb appeal with lasting durability. Buyers can further personalize the home with optional features such as a gas fireplace, vaulted ceilings in the great room and/or primary bedroom, and the flexibility to choose a detached rear garage, attached rear garage, or no garage configuration, allowing the property to be tailored to individual lifestyle preferences. Situated within the thoughtfully planned community of Diamond Ridge, residents enjoy close access to local shops, cafés, schools, parks, pathway systems, and nearby access to the Sheep River and regional trails. With convenient connections to Okotoks and south Calgary, Diamond Ridge offers the ideal balance of small-town charm and modern accessibility. Estimated completion is scheduled for Summer 2026. Photos contain are rendered examples.
-
2BEDS
-
0.11ACRES
-
2BATHS
-
01/2 BATHS
-
1,384SQFT
-
$523$/SQFT
Description
For more information, please click the "More Information" button. Quietly elegant and thoughtfully designed, the Yates 2 bungalow custom home offers a refined approach to single-level living in the heart of Diamond Ridge in Diamond Valley. Located on Lot 40 at 308 John Avenue SW, this new construction home provides 1,384 sq. ft. of thoughtfully planned space, balancing openness with intentional privacy. Wide front-facing windows flood the main living area with natural light, enhancing the home’s warm and welcoming atmosphere. The open-concept design flows seamlessly from the kitchen into the dining and living areas—ideal for both everyday living and hosting. With 9’ ceilings throughout the main floor, the space feels bright and expansive. The kitchen is anchored by a large central island with breakfast bar, stone countertops, soft-close cabinetry, and a premium LG appliance package—delivering both elevated design and everyday functionality. This well-balanced layout offers 2 bedrooms and 2 full bathrooms, including a spacious primary retreat complete with a walk-in closet and four-piece ensuite. Buyers have the opportunity to select a configuration that further enhances privacy by positioning the primary bedroom in a more secluded rear setting—creating a true separation between the sleeping quarters and main living areas. This thoughtful design option adds flexibility and a more estate-inspired feel to bungalow living. A functional mudroom with main-floor laundry adds convenience and practical organization, supporting easy, low-maintenance living. Exterior finishes showcase a cohesive modern aesthetic, including black asphalt shingles, white horizontal fiber cement siding, black window trim, black metal soffits, fascia and eavestroughs, and black vinyl-clad windows—offering strong curb appeal with lasting durability. Buyers can further personalize the home with optional features such as a gas fireplace, vaulted ceilings in the great room and/or primary bedroom, and the flexibility to choose a detached rear garage, attached rear garage, or no garage configuration, allowing the property to be tailored to individual lifestyle preferences. Situated within the thoughtfully planned community of Diamond Ridge, residents enjoy close access to local shops, cafés, schools, parks, pathway systems, and nearby access to the Sheep River and regional trails. With convenient connections to Okotoks and south Calgary, Diamond Ridge offers the ideal balance of small-town charm and modern accessibility. Estimated completion is scheduled for Summer 2026. Photos contain are rendered examples.
